Дома из клееного бруса "Шульгино"
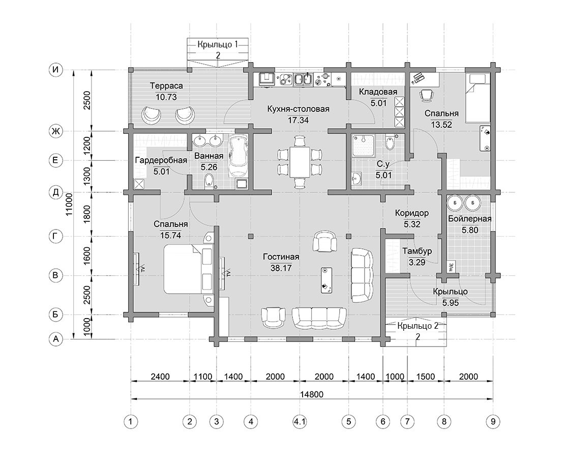
Площадь: 140 м² Этажи: 1 Кол-во спален: 2 Размеры: 14,8х11 м
3 275 000 руб.- Тип постройки Дом
- Материал Клееный брус
- Тип кровли -
- Размер 14.8*11
- Площадь 140.00 м2
- Этажей 1
- Фундамент -
- Спален 2
- Санузлов 1
- Комплектация Под ключ
- Стиль -
- Доп. параметры терраса
Подробное описание
Проект одноэтажного дома из клееного бруса для постоянного проживания "Шульгино".
Особенности проекта: вальмовая крыша, большое остекление, комфортная планировка для круглогодичного проживания семьи из 3-х человек.
Планировкой дома предусмотрены 2 спальни, которые разведены для лучшей звукоизоляции, также при каждой из спален есть свой санузел.
