Дом из клееного бруса "Финская симфония"
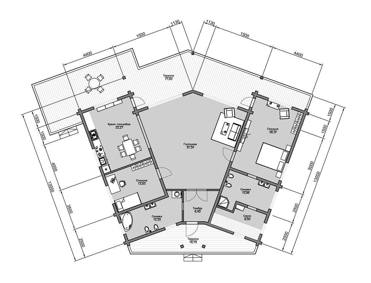
Площадь: 249 м² Этажи: 1 Кол-во спален: 2 Размеры: 14х13 м
5 459 000 руб.- Тип постройки Дом
- Материал Клееный брус
- Тип кровли -
- Размер 14*13
- Площадь 249.00 м2
- Этажей 1
- Фундамент -
- Спален 2
- Санузлов 1
- Комплектация Под ключ
- Стиль -
- Доп. параметры терраса, сауна
Подробное описание
Проект дома "Финская симфония" выполнен по традиционным финским мотивам и имеет веерообразную архитектурную форму, которая придает зданию легкость и элегантность.
Планировка дома включает просторную и светлую гостиную, которая является связным звеном в планировке дома. Из гостиной легко попасть через дверной портал в кухню-столовую, через которую можно выйти на летнюю террасу.
Также выход на террасу есть в одной из спален расположенной с другой стороны гостиной. Стены и стропильная часть дома выполнены из клееного бруса.
