Дом из клееного бруса "Марфино"
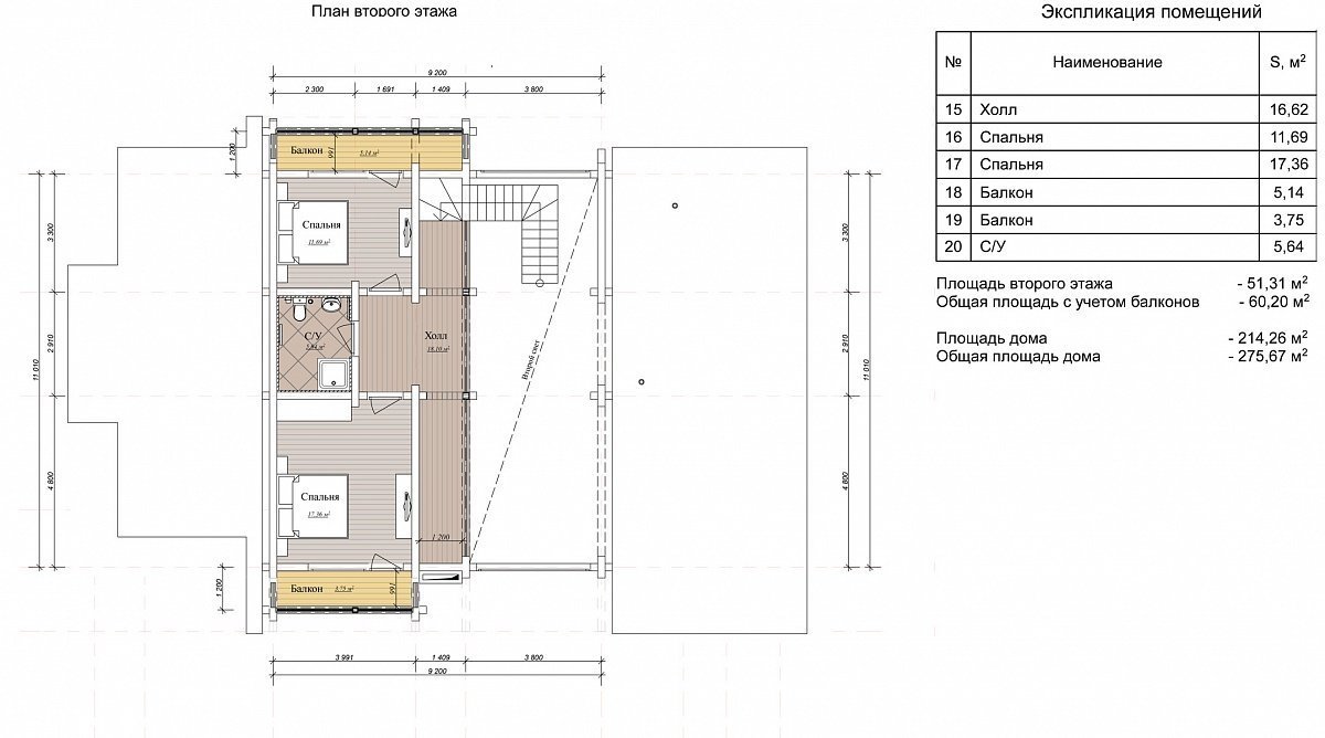
Площадь: 275 м² Этажи: 2 Кол-во спален: 4 Размеры: 19,2 x14,4 м
8 717 000 руб.- Тип постройки Дом
- Материал Клееный брус
- Тип кровли -
- Размер 19.2*14.4
- Площадь 275.00 м2
- Этажей 2
- Фундамент -
- Спален 4
- Санузлов 3
- Комплектация Под ключ
- Стиль -
- Доп. параметры балкон, терраса
Подробное описание
Это красивый и просторный проект шале выполненный в лучших традициях классического европейского домостроения. Архитектуру шале подчеркивают большие скаты крыши и наличие камина с оригинальной внешней отделкой.
Стены дома выполнены из качественного клееного бруса, в том числе и его стропильная часть, что очень важно при наличии крыши с большими скатами.
